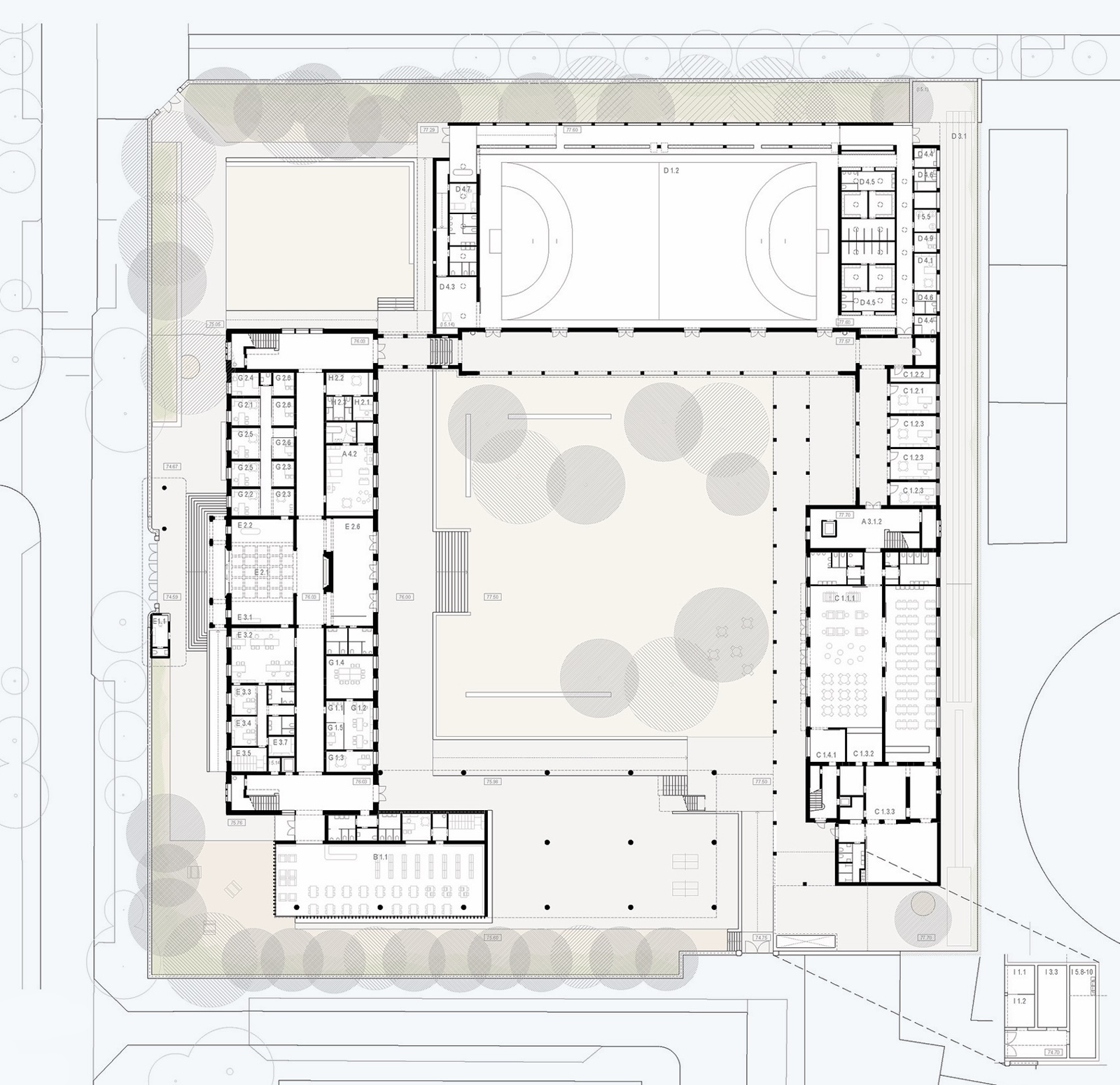
NG – REHABILITATION NUNO GONÇALVES SCHOOL

Penha de França, Lisbon, Portugal
ENG / PT
NG – REHABILITATION NUNO GONÇALVES SCHOOL
Penha de França, Lisbon, Portugal

2nd prize international public competition



ARCHITECTURE
atelier Jordana Tomé Vitor Quaresma + José Ribeiro Tavares

COLLABORATION
André Matos

CLIENT
SRU Lisboa Ocidental

LANDSCAPE
HAHA Arquitectura Paisagista

ENGINEERING
EST: Betar | ELECT. SCIE: Arproj | HAVAC: Eng. Bruno Henriques | HYDR: CoreProjects

CONSTR. BUILT AREA
11.900sqm

PROJECT PERIOD
2025

RENDERS
Cuco Studio
Rehabilitation Nuno Gonçalves School
Rehabilitation Nuno Gonçalves School
Rehabilitation Nuno Gonçalves School
Rehabilitation Nuno Gonçalves School
Rehabilitation Nuno Gonçalves School
Rehabilitation Nuno Gonçalves School